The pin shows the centre of the property's postcode. It does not pinpoint the exact address.

6 Newell Hall Warfield Street, Bracknell, Warfield, Berkshire, RG42 6AQ

We are proud to offer this Two Bedroom Mews Property – - all interest and offers are invited.

*Guide Price £685,000 - £650,000*

  • Bedrooms

    2

  • Bathrooms

    2

  • Property type

    Mews House

  • Guide Price

    £650,000

Key Features

  • *Guide Price £685,000 - £650,000*
  • Mews House Set in the Exclusive Converted Grade II Listed Queen Anne Mansion
  • Vacant with No Onward Chain - Ready to Move Into
  • Immaculately Presented & Sympathetically Refurbished with Abundance of Character Features
  • Two Large Dual Aspect Double Bedrooms
  • En-Suite Bathrooms to Both Bedrooms & Cloakroom WC
  • Generous Dual Aspect Lounge with Feature Stone Fireplace
  • Open Plan Kitchen & Conservatory with French Patio Doors
  • Two Allocated Parking Spaces
  • Private Garden & Patio Overlooking the Beautiful 2.4 Acre Communal Gardens

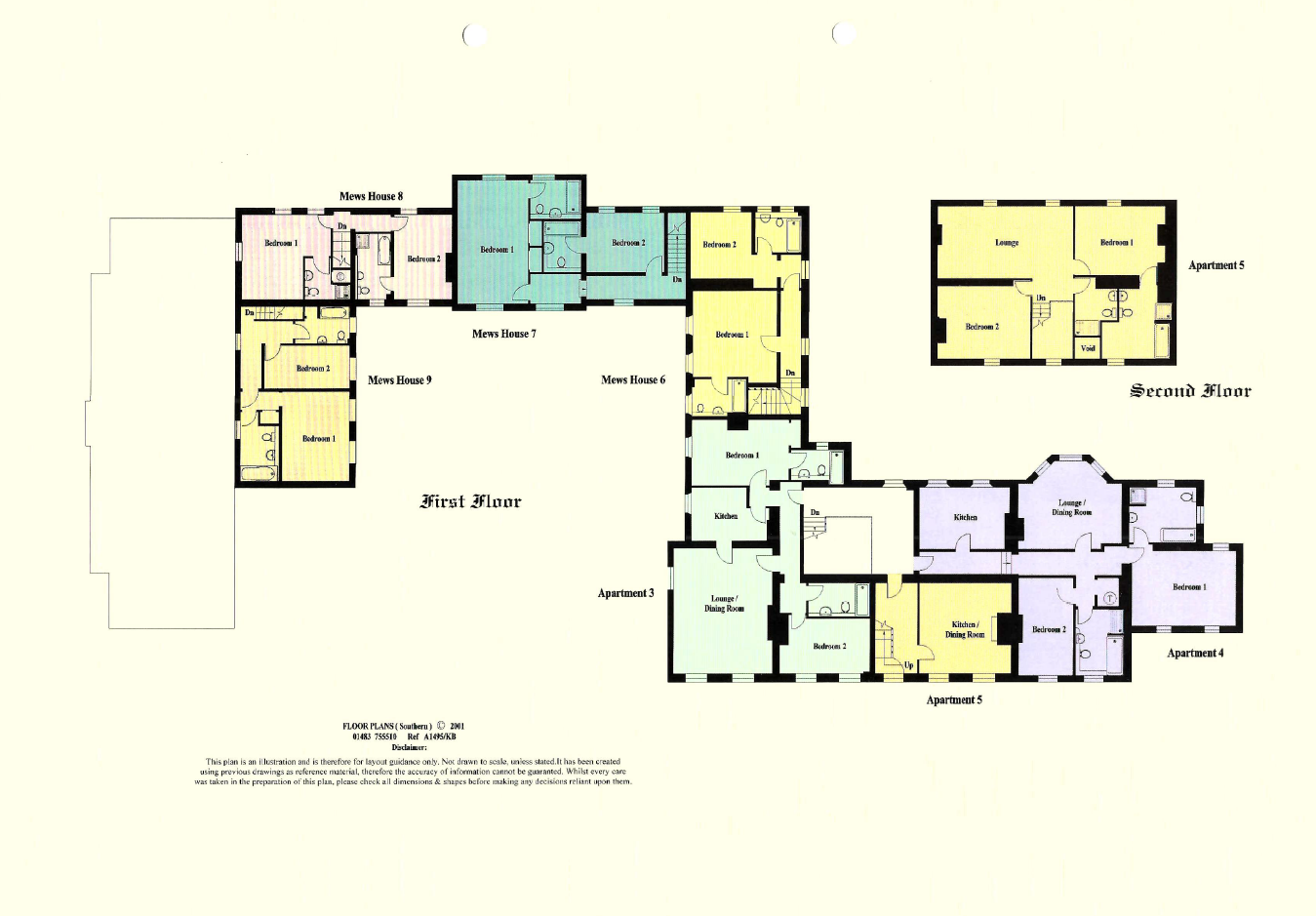
Floor Plan

Floor plan

Full Description

We are proud to offer this Two Bedroom Mews Property – all interest and offers are invited.

*Guide Price £685,000 - £650,000*

Video Tour: https://www.youtube.com/watch?app=desktop&v=MJ5y_tB7fh0

No. 6 forms part of an exclusive development of just eleven character homes within a beautifully converted Grade II listed Queen Anne mansion. Completed in 2003, the conversion was carried out with great sensitivity to the building’s heritage, and the current owner has occupied the property ever since. The location offers excellent convenience, with easy access to highly regarded schools, local shopping, and sporting facilities across Windsor, Ascot, Bracknell, and Maidenhead, as well as major transport links including the M4, M25, and Heathrow Airport.

This elegant mews-style home showcases high ceilings with decorative coving, creating an immediate sense of space and period charm. The accommodation includes two large dual-aspect double bedrooms, each with sash windows and its own en-suite bathroom. The ground floor features a spacious open-plan kitchen leading into a panoramic dining conservatory (recently upgraded to a high standard), with French doors opening onto the patio and garden. A bright dual-aspect living room with an impressive stone fireplace provides a welcoming central space, complemented by a downstairs cloakroom and a sizeable understairs store room with a sash window, which has previously been used as a compact workstation.

Beautifully presented throughout, the property has been completely redecorated and recarpeted, offering a ready-to-move-into home. The landing features large sash windows overlooking the garden, enhancing the light and airy feel. Outside, the property benefits from two parking spaces close to the house, a small manageable private garden, and a generous patio that enjoys views over the expansive 2.4-acre communal grounds. These landscaped gardens include mature planting, a pond, and decorative lighting, creating a peaceful setting with countryside views to the rear and side.

ADDITIONAL INFORMATION:

Council Tax Band: E

Local Authority: Bracknell Forest

Tenure: Share of Freehold

Lease Term: 999 Years from 1 June 2000

Ground Rent: A Peppercorn

Service Charges: £4,650 per annum

LEGAL DISCLAIMER:

These particulars, whilst believed to be accurate are set out as a general guideline and do not constitute any part of an offer or contract. Intending Purchasers should not rely on them as statements of representation of fact, but must satisfy themselves by inspection or otherwise as to their accuracy. Please note that we have not tested any apparatus, equipment, fixtures, fittings or services including heating and so cannot verify they are in working order or fit for their purpose. Furthermore, Solicitors should confirm moveable items described in the sales particulars and, in fact, included in the sale since circumstances do change during the marketing or negotiations. Although we try to ensure accuracy, if measurements are used in this listing, they may be approximate. Therefore if intending Purchasers need accurate measurements to order carpeting or to ensure existing furniture will fit, they should take such measurements themselves. Photographs are reproduced general information and it must not be inferred that any item is included for sale with the property.

TENURE

To be confirmed by the Vendor’s Solicitors

POSSESSION

Vacant possession upon completion

VIEWING

Viewing strictly by appointment through The Express Estate Agency

Energy Performance Certificates (EPCs)

Energy Performance Certificate

Similar properties for sale nearby

St Christophers Gardens, Ascot, Berkshire, SL5 8LZ
St Christophers Gardens, Ascot, Berkshire, SL5 8LZ
£152,500
FIND OUT MORE
Arnett Avenue, Wokingham, Finchampstead, Berkshire, RG40 4EE
Arnett Avenue, Wokingham, Finchampstead, Berkshire, RG40 4EE
£355,000
FIND OUT MORE
22 Bosworth Court Bath Road, Slough, Berkshire, SL1 6DA
22 Bosworth Court Bath Road, Slough, Berkshire, SL1 6DA
£180,000
FIND OUT MORE